Área do Cliente
|
Acesse pelo celular

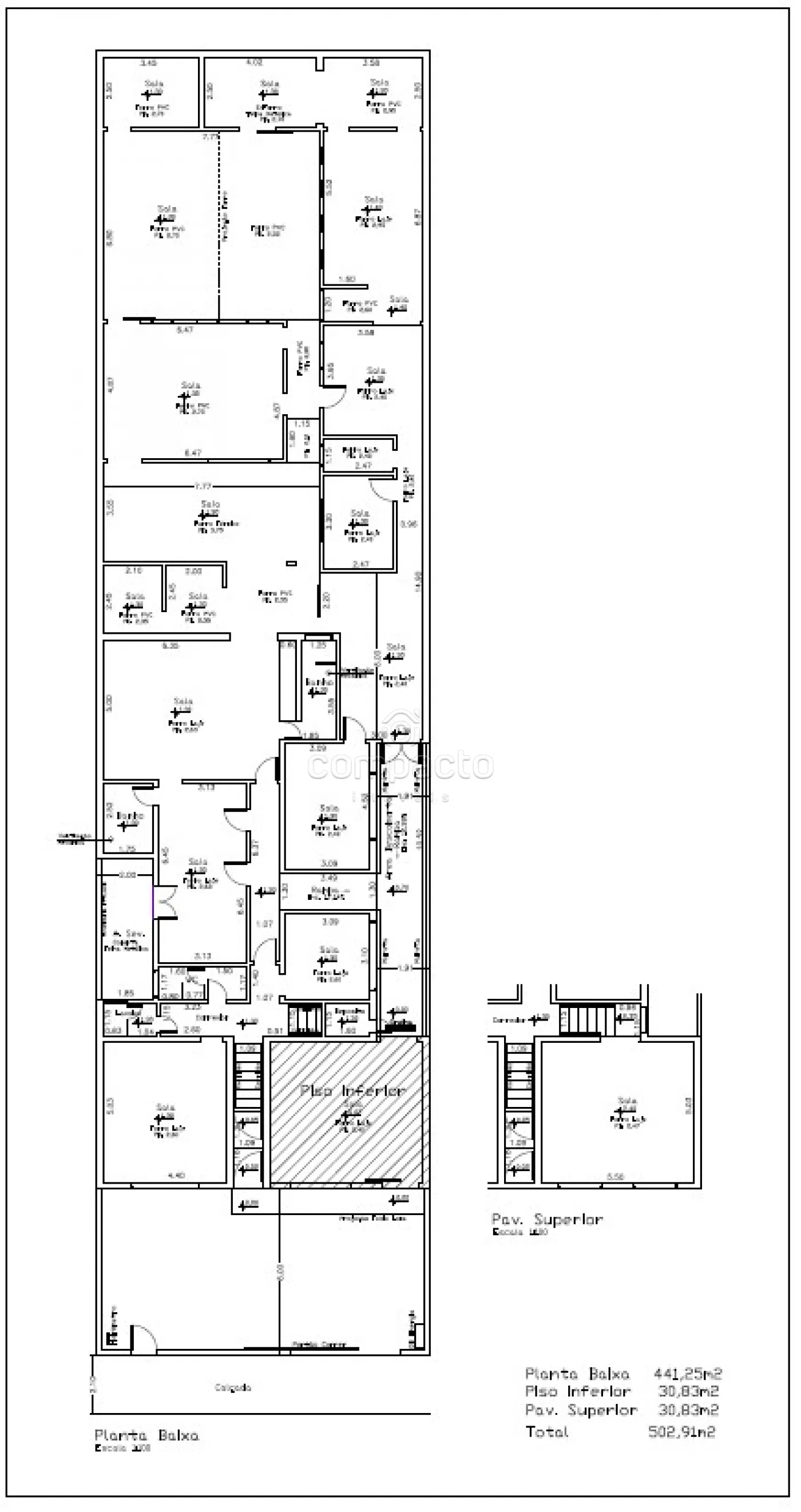
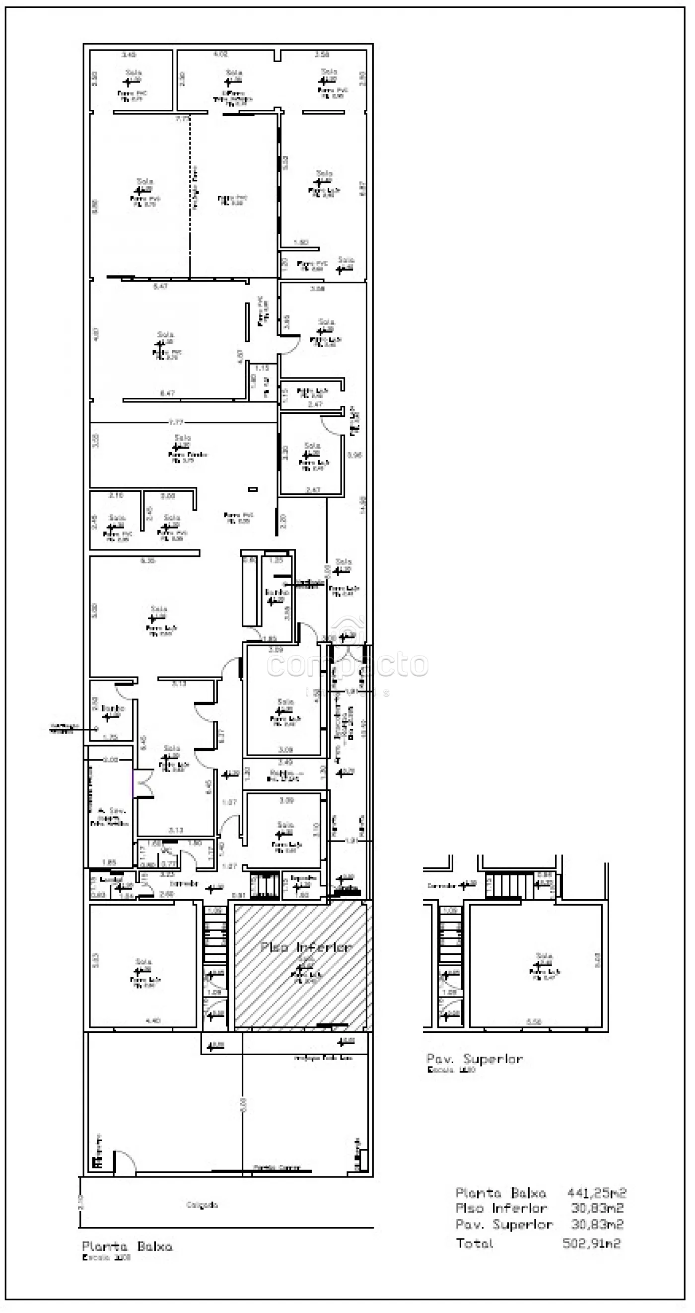
Sobrado Comercial medindo 441,25m² para alugar - Vila imperial

Comercial Casa - Vila Imperial Comercial para Locação ou Venda em São José do Rio Preto

|
Compartilhe:

DISPONÍVEL

Imóvel disponível. Contate-nos pessoalmente para visita-lo


DE: Aluguel
7.500,00

POR: Aluguel

IPTU
200,00
Total para Acessórios valores sujeitos a alteração.

Venda

(ITBI, Registro, Escritura e Certidões)
Consulte-nos
Comercial
Finalidade
26855
Referência
3
Banheiros
500.00 m²
A. Terreno
441.25 m²
A. Útil
Descrição do Imóvel

Amplo sobrado comercial com 441,25 m² de área útil, ideal para empresas, clínicas, escritórios, escolas e coworking.

O imóvel conta com 12 cômodos bem distribuídos, que proporcionam versatilidade para diferentes configurações de trabalho, além de 3 banheiros para maior comodidade.

Localizado na Vila Imperial, divisa com o bairro Redentora, em região de fácil acesso e grande valorização, fora da área de estacionamento rotativo. É uma excelente oportunidade para quem busca um espaço amplo, funcional e pronto para receber seu negócio.

Simule um Financiamento

Localização Comercial / Casa em São José do Rio Preto

DISPONÍVEL

Imóvel disponível. Contate-nos pessoalmente para visita-lo



DE: Aluguel
7.500,00

POR: Aluguel

IPTU
200,00

Total / Mês
7.100,00



Venda

(ITBI, Registro, Escritura e Certidões)
Consulte-nos

Total
1.800.000,00

DÚVIDAS SOBRE O IMÓVEL
PREENCHA O FORMULÁRIO


Concordo com os Termos e Privacidade
Imóveis Similares