Acesse pelo celular

Casa com 3 Quartos e 1 Vaga de garagem, 95m² - Cecap

Casa Padrão - Cecap Residencial para Locação em São José do Rio Preto

|
Compartilhe:

DISPONÍVEL

Imóvel disponível. Contate-nos pessoalmente para visita-lo


DE: Aluguel
1.370,00

POR: Aluguel

IPTU
70,00
Residencial
Finalidade
26326
Referência
3
Dormitórios
1
Suite
2
Banheiros
1
Garagem
95.00 m²
A. Útil
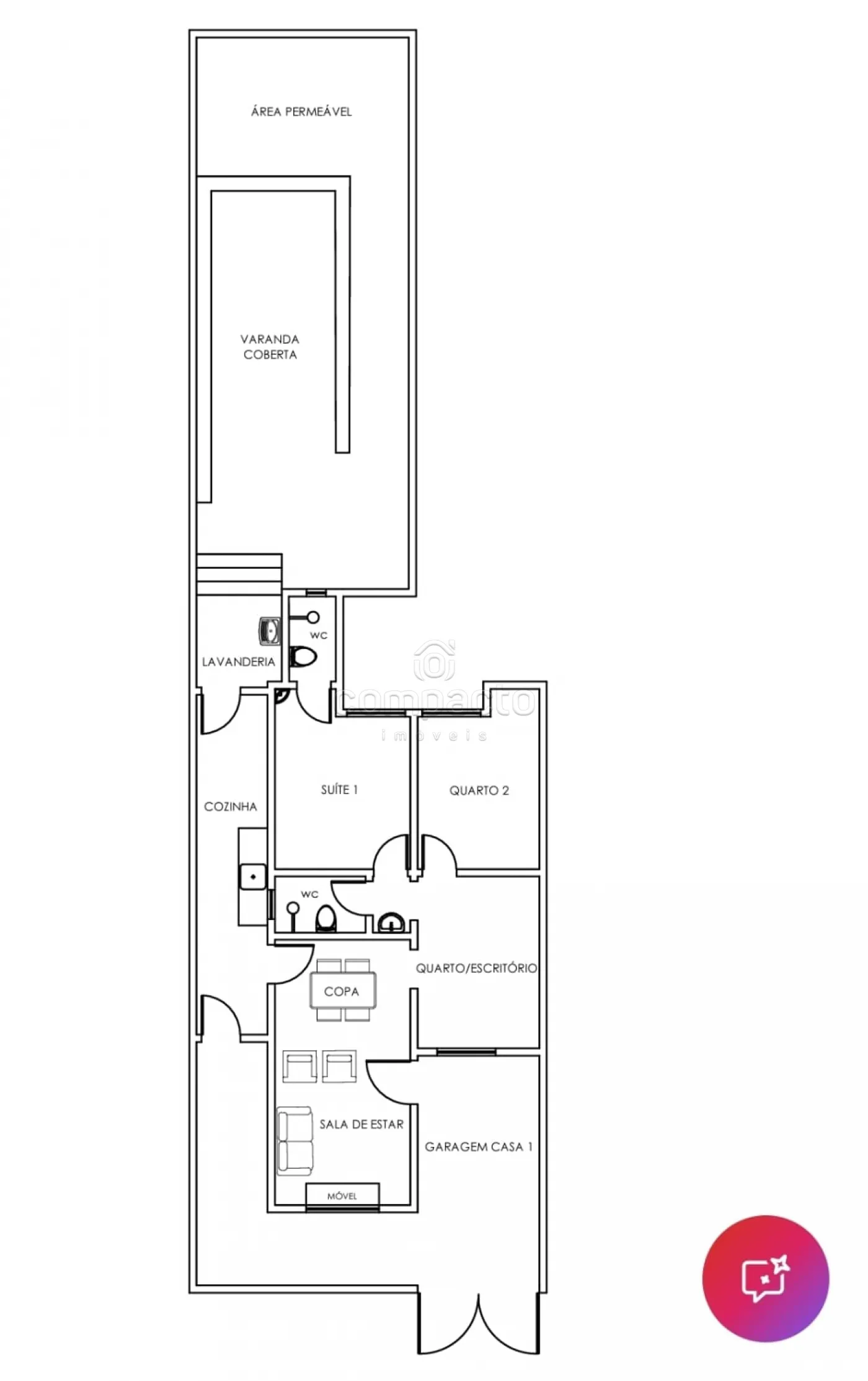
Descrição do Imóvel

Casa com 3 quartos confortáveis sendo 1 suíte, sala arejada, banheiro social com box, cozinha funcional, lavanderia separada e 1 vaga de garagem. Ideal para quem busca praticidade e conforto no dia a dia.

Itens do Imóvel

Box
Cozinha
Iluminação
Sala de Estar
Localização Casa / Padrão em São José do Rio Preto

DISPONÍVEL

Imóvel disponível. Contate-nos pessoalmente para visita-lo



DE: Aluguel
1.370,00

POR: Aluguel

IPTU
70,00

Total / Mês
1.320,00

DÚVIDAS SOBRE O IMÓVEL
PREENCHA O FORMULÁRIO


Concordo com os Termos e Privacidade
Imóveis Similares